Matera – AFFARE! Intero stabile con più unità immobiliari

  • TRATTATIVA RISERVATA
In primo piano in Vendita
  • Appartamento, Casa Indipendente, Garage, Intero Stabile
  • Tipo di proprietà
  • 4
  • Camere da letto
  • 4
  • Bagni
  • 1
  • Garage
  • 355
  • mq
In primo piano in Vendita

Matera – AFFARE! Intero stabile con più unità immobiliari

  • TRATTATIVA RISERVATA

Descrizione

INTERA PALAZZINA -INTERRATO/TETTO- o ACQUISTO SINGOLE UNITA’ Immobiliari

Nei pressi del Palazzetto dello Sport, in zona servita da attività commerciali, scuole ed uffici, AESSE propone la vendita di una intera palazzina provvista di ascensore posta in un recinto privato con cortile/parcheggio esterno di proprietà.

L’intero compendio immobiliare è così composto:
– grande locale deposito/garages al piano interrato -con accesso esclusivo- della superficie di mq. 150;

– appartamento al piano terra di mq. 115 con corte circostante avente un grande open space con angolo cottura e camino, stanza da letto matrimoniale e comodo bagno;

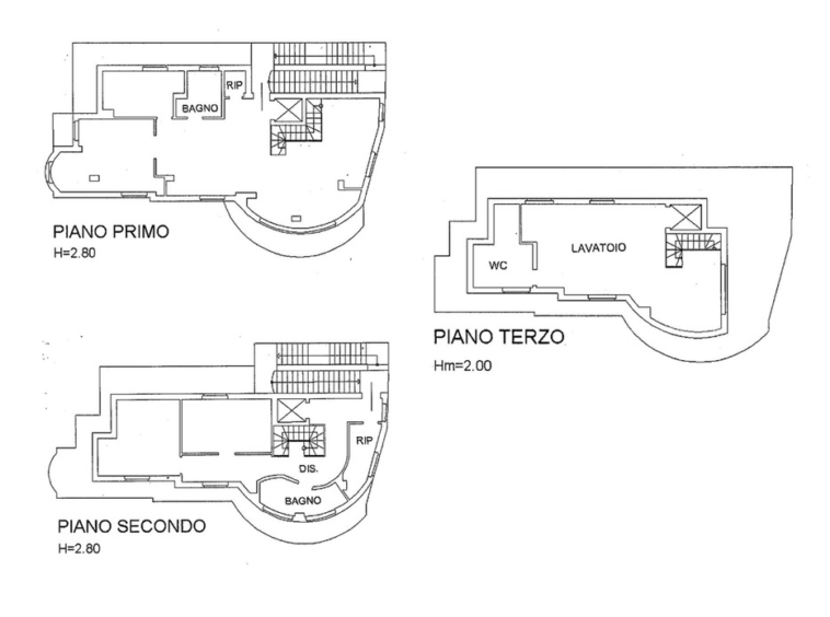
– appartamento su più livelli della superficie complessiva di mq. 240 così composto:

*piano primo grande open space con camino, cucina abitabile, bagno e camera/studio; terrazzi a livello di circa mq. 130;

*piano secondo due camere da letto, bagno e vano lavanderia;

*piano   terzo composto da open space diviso da porte scorrevoli in due ambienti oltre bagno e terrazzo.


Eccellenti le rifiniture, impianti raffrescamento/riscaldamento a pavimento, porte ed infissi interni di pregio così come i bagni ed i pavimenti.

Possibilità anche di acquisto frazionato delle singole unità immobiliari.

Ulteriori informazioni in sede.

Informazioni sui contatti

Visualizza annunci
Programma Casa

Richiedi informazioni su questa proprietà

Annunci simili

Compare listings

Compare
Programma Casa
  • Programma Casa